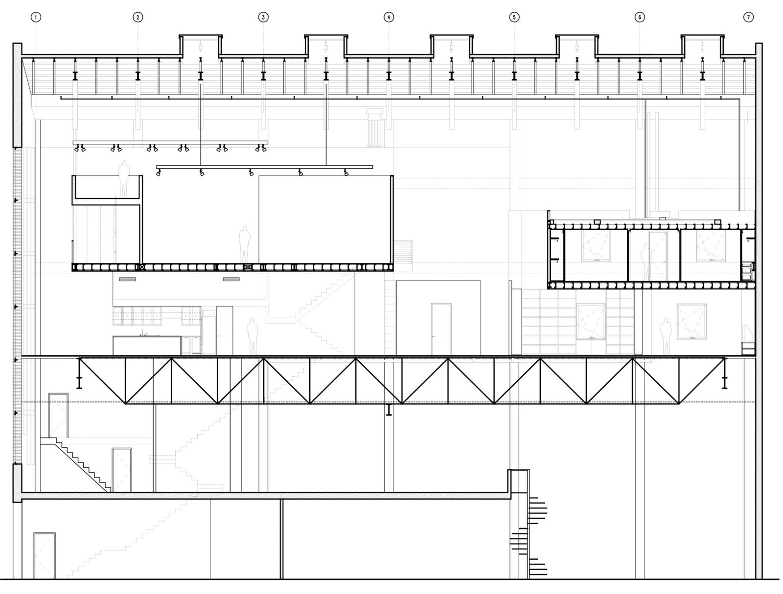
Artist Studio

Office: Gluckman Mayner Architects
Role: Project Designer – Concept through Construction

Type: Residence
Status: Completed 2008
Size: 8,215 sqft
Location: Brooklyn, NYC

A former set painting facility for the Metropolitan Opera and the current art studio for a world renowned artist and residence for his son. Utilizing the height and narrow nature of the building the residence is conceived as a series of floating and shifting bedroom volumes with public spaces in between that allow natural light from skylights to slip through the playful volumes.