
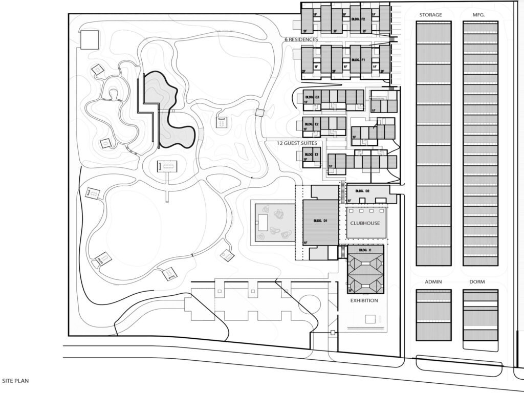
NANMU
Office: Gluckman Mayner Architects
Role: Project Designer – Concept
Type: Manufacturing and Family Retreat
Status: Unbuilt
Size: 150,000 sqft
Location: Beijing, China
A factory and family retreat for a young businessman and his company that specializes in reproduction Ming Dy- nasty furniture using both the original wood and woodworking techniques. The wood called Nanmu is now a protected species that can only be reclaimed from existing structures or from the bottom of rivers.\The family retreat is set within an adjacent park, comprised of 6 family residences, 12 guest suites, an entertain- ing clubhouse and exhibition spaces.The project is constructed entirely of masonry as a way to unify the varying uses types and walkways that weave their way through the project are constructed from bamboo as a way to respect local tradesmen and materials.
















