
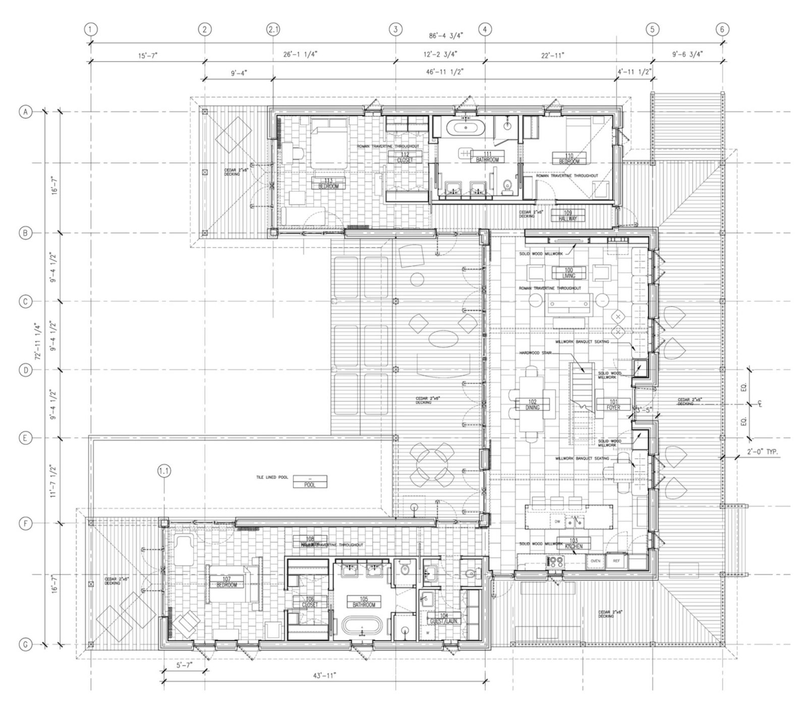
TURKS AND CAICOS RESIDENCE
Office: Chalk & Fjord – Ryan Harvey & Christina Kwak
Role: Designer & Builder
Type: Residence
Status: Completed 2010
Size: 2,500 sqft
Location: Turks and Caicos Islands, BWI
A family residence constructed of poured in place concrete, timber roof framing and clad in limestone that was quarried from site excavation. The use of deep verandas as a major design element provides cooling and comfort- able outdoor living spaces.








